https://marktroehrnbach.de/wp-content/uploads/2026/01/04_Lageplan_FNP66_001.png256266Anna Rehhttps://marktroehrnbach.de/wp-content/uploads/2024/11/logo-markt-roehrnbach.psd-4-1.pngAnna Reh2026-01-21 13:00:222026-01-22 08:53:16Änderung des Flächennutzungsplanes mit Deckblatt Nr. 66
https://marktroehrnbach.de/wp-content/uploads/2026/01/04_FNP_001.png269392Anna Rehhttps://marktroehrnbach.de/wp-content/uploads/2024/11/logo-markt-roehrnbach.psd-4-1.pngAnna Reh2026-01-16 10:09:502026-01-16 11:47:44Änderung des Flächennutzungsplanes mit Deckblatt Nr. 67
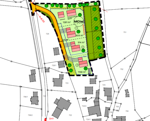
https://marktroehrnbach.de/wp-content/uploads/2026/01/02_BBP_001.png431448Anna Rehhttps://marktroehrnbach.de/wp-content/uploads/2024/11/logo-markt-roehrnbach.psd-4-1.pngAnna Reh2026-01-16 10:04:442026-01-16 11:47:20Aufstellung des Bebauungsplanes WA „Höbersberg Ost“
https://marktroehrnbach.de/wp-content/uploads/2025/05/Lageplan_001-1.png529452Anna Rehhttps://marktroehrnbach.de/wp-content/uploads/2024/11/logo-markt-roehrnbach.psd-4-1.pngAnna Reh2025-05-19 10:18:392025-11-18 12:26:12Änderung des Flächennutzungsplanes mit Deckblatt Nr. 65
https://marktroehrnbach.de/wp-content/uploads/2025/05/Lageplan-2_001.png831593Anna Rehhttps://marktroehrnbach.de/wp-content/uploads/2024/11/logo-markt-roehrnbach.psd-4-1.pngAnna Reh2025-05-19 10:09:332025-11-20 16:34:12Änderung des Bebauungsplanes „SO Tourismus Jagdhof Röhrnbach“ mit Deckblatt Nr. 2
https://marktroehrnbach.de/wp-content/uploads/2025/04/Lageplan_001-5.png254395Anna Rehhttps://marktroehrnbach.de/wp-content/uploads/2024/11/logo-markt-roehrnbach.psd-4-1.pngAnna Reh2025-04-10 07:55:472025-09-09 12:23:49Änderung des Flächennutzungsplanes durch Deckblatt Nr. 64
https://marktroehrnbach.de/wp-content/uploads/2025/01/Lageplan_Bekanntmachung_001.png659597Julia Ederhttps://marktroehrnbach.de/wp-content/uploads/2024/11/logo-markt-roehrnbach.psd-4-1.pngJulia Eder2025-01-27 12:28:342025-01-27 16:06:42Satzung zum Erlass einer Veränderungssperre
https://marktroehrnbach.de/wp-content/uploads/2024/02/Lageplan-1-pdf.jpg456731Julia Ederhttps://marktroehrnbach.de/wp-content/uploads/2024/11/logo-markt-roehrnbach.psd-4-1.pngJulia Eder2024-02-06 15:42:302025-08-20 12:24:18Änderung des Flächennutzungsplans durch Deckblatt Nr. 63
https://marktroehrnbach.de/wp-content/uploads/2023/08/Lageplan-pdf.jpg11971239Julia Ederhttps://marktroehrnbach.de/wp-content/uploads/2024/11/logo-markt-roehrnbach.psd-4-1.pngJulia Eder2023-08-17 11:52:392024-02-06 15:09:57Änderung des Flächennutzungsplans durch Deckblatt Nr. 62
https://marktroehrnbach.de/wp-content/uploads/2023/08/Lageplan_001.png450488Julia Ederhttps://marktroehrnbach.de/wp-content/uploads/2024/11/logo-markt-roehrnbach.psd-4-1.pngJulia Eder2023-08-15 11:32:442024-02-07 11:32:27Änderung des Bebauungsplans „Perlesreuter Straße“ durch Deckblatt Nr. 3
https://marktroehrnbach.de/wp-content/uploads/2023/04/Lageplan_FNP.jpg300300Corinna Kölblhttps://marktroehrnbach.de/wp-content/uploads/2024/11/logo-markt-roehrnbach.psd-4-1.pngCorinna Kölbl2023-04-21 10:55:412023-04-21 11:03:51Änderung des Flächennutzungsplans durch Deckblatt Nr. 61
https://marktroehrnbach.de/wp-content/uploads/2023/04/Lageplan_Rechtskraft.png276282Julia Ederhttps://marktroehrnbach.de/wp-content/uploads/2024/11/logo-markt-roehrnbach.psd-4-1.pngJulia Eder2023-04-14 13:36:452025-04-01 12:25:53Änderung des Flächennutzungsplans durch Deckblatt Nr. 60
https://marktroehrnbach.de/wp-content/uploads/2023/04/Ausschnitt_001-1.png472490Julia Ederhttps://marktroehrnbach.de/wp-content/uploads/2024/11/logo-markt-roehrnbach.psd-4-1.pngJulia Eder2023-04-14 13:23:492023-04-14 13:40:13Änderung des Flächennutzungsplans durch Deckblatt Nr. 59
https://marktroehrnbach.de/wp-content/uploads/2022/10/Lageplan_Aufstellungsbeschluss-1-pdf.jpg14961059Julia Ederhttps://marktroehrnbach.de/wp-content/uploads/2024/11/logo-markt-roehrnbach.psd-4-1.pngJulia Eder2022-10-28 12:03:462022-10-28 12:03:46Änderung des Flächennutzungsplans durch Deckblatt Nr. 58
https://marktroehrnbach.de/wp-content/uploads/2021/08/Lageplan_BBP_001.png10601037Corinna Kölblhttps://marktroehrnbach.de/wp-content/uploads/2024/11/logo-markt-roehrnbach.psd-4-1.pngCorinna Kölbl2021-08-10 16:43:502025-11-13 16:04:56Aufstellung des Bebauungsplans „Zur alten Wagnerei“
https://marktroehrnbach.de/wp-content/uploads/2021/08/Lageplan_FNP_001.png213316Corinna Kölblhttps://marktroehrnbach.de/wp-content/uploads/2024/11/logo-markt-roehrnbach.psd-4-1.pngCorinna Kölbl2021-08-10 12:50:042025-11-13 16:05:23Änderung des Flächennutzungsplans durch Deckblatt Nr. 56